

Ulica: | Východná |
---|---|
Obec: | Východná |
Okres: | Liptovský Mikuláš |
Kraj: | Žilinský kraj |
Druh: | Byty |
Typ: | Predaj |
Typ bytu: | 2-izbový byt |
Iné: |
VÝSTAVBA NAPREDUJE A PREDAJ BYTOV ZA ZVÝHODNENÉ AKCIOVÉ CENY POKRAČUJE !!!
AKCIA = CENA BYTU vo výbave ŠTANDARD za cenu HOLOBYTU !!!
EXKLUZÍVNE - VÝHRADNE iba u nás ponúkame predaj BYTOV, APARTMÁNOV a OBCHODNÝCH PRIESTOROV v novostavbe polyfunkčného bytového domu vo VÝCHODNEJ.
Bytový dom VÝCHODNÁ sa nachádza v nádhernej a tichej lokalite s nezameniteľným výhľadom na panorámu Vysokých Tatier - Kriváň.
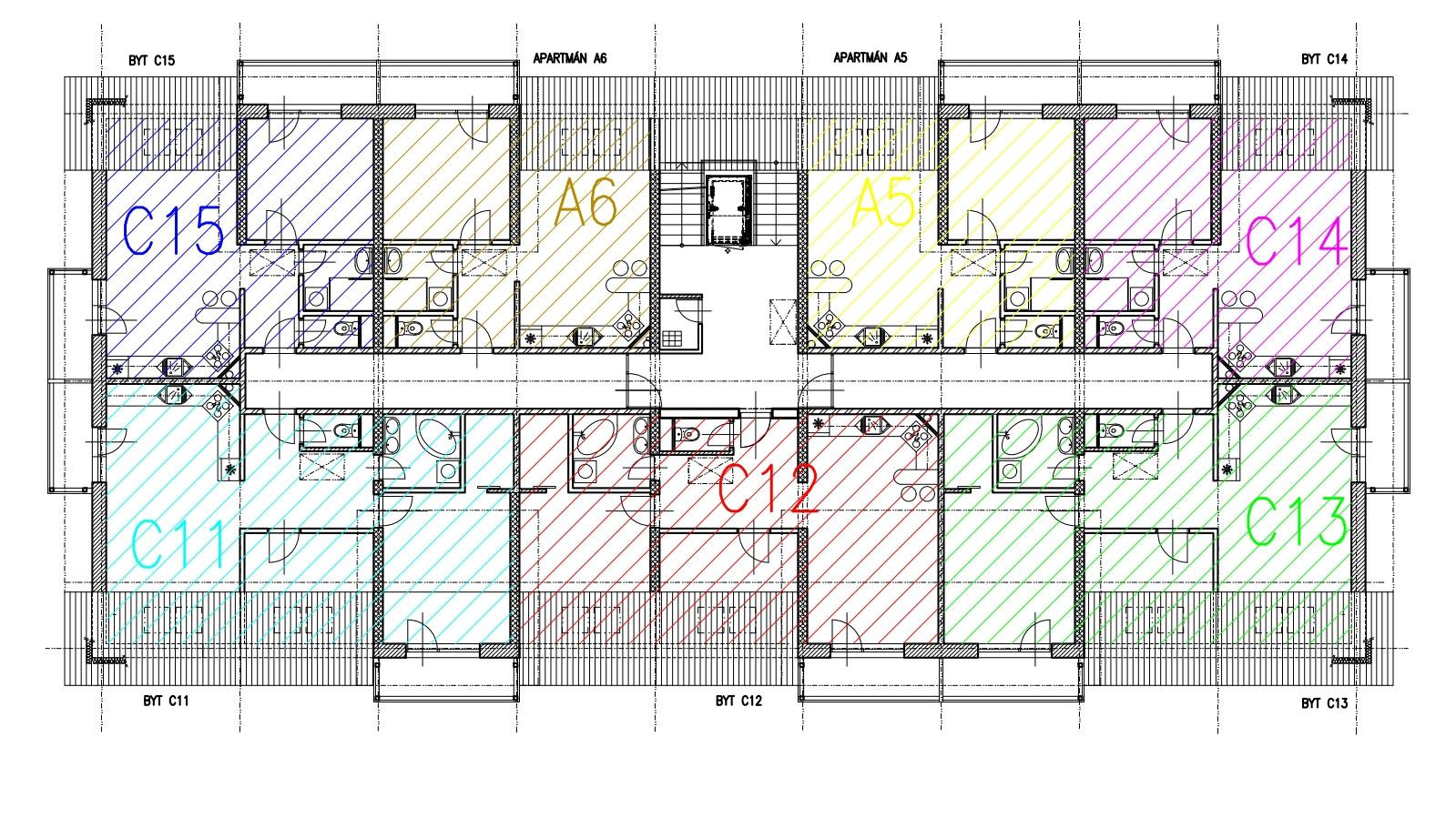
Polyfunkčný bytový dom VÝCHODNÁ obsahuje 15 bytov, 6 apartmánov a 3 obchodné priestory. Dom bude mať 4 nadzemné podlažia s výťahom.
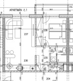
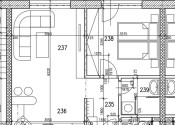
Byty sú 2 a 3 izbové s jedným alebo dvomi balkónmi a apartmány sú 2 izbové s jedným alebo dvomi balkónmi. Veľkosť bytov a apartmánov je od 47,30 m2 až po 76,30 m2 s balkónom. Výmera pivničky je 1,30 m2 a výmera parkovacieho miesta je 12 m2.
Bytový dom ako aj byty, apartmány a nebytové priestory sú momentálne vo fáze výstavby. Stav výstavby na zverejnených fotografiách sa bude postupne meniť od možnosti ďalšej výstavby v závislosti od počasia.
Pri podpise Zmluvy o budúcej kúpnej zmluve získate od nás ako bonus k bytu "GRÁTIS" jedno vonkajšie parkovacie státie vo veľkosti 12 m2 a pivničnú kobku !!! K apartmánu a obchodnému priestoru získate GRÁTIS jedno vonkajšie parkovacie státie vo veľkosti 12 m2 !!!
A navyše vám budeme garantovať kúpnu cenu bytu / apartmánu bez ďalšieho navýšenia kúpnej ceny !!!
Prevedenie bytov a apartmánov v štádiu HOLOBYTU pozostáva:
STENY:
- Obvodové steny tehlové 38 P+D + vonkajšie zateplenie polystyren v kombinácii s mineralnou vatou hrúbke 15 cm
- vnútorné omietky vápenno-cementové hladké
- omietky striekané so základným hygienickým náterom v bielej farbe
- dverné otvory typizovaných rozmerov, príprava na dverné obložky
- okná a balkónové dvere plastové s izolačným trojsklom (vnútorná farba biela, vonkajšia antracit)
- dvere vchodové do bytu – fóliované s MDF protipožiarne, zasadené v oceľovej zárubni, kovanie guľa/kľuka
PODLAHY:
- potery cementové hladké
KÚRENIE:
- centrálne ústredné kúrenie z plynovej kotolne pre bytový dom
- rozvody pre panelové radiátory
- panelové radiátory s termostatickou reguláciou
- meranie spotreby tepla meračom umiestneným v rozvodnej šachte (prípadne digitálne meranie na radiátoroch s dialkovým odpočtom)
ELEKTRIKA:
- rozvody elektrickej inštalácie ukončené krabicou na zástrčky a vypínače
- pri vstupných dverách bytový rozvádzač silnoprúdu a slaboprúdu (s ističmi pre byt a hlavným vypínačom)
- príprava pre spotrebiče, okruhy istené samostatným ističom
- príprava na príjem dátového a televízneho signálu
- v každom byte inštalovaný domáci telefón – audio-vrátnik a príprava vývodov pre svietidlá
- silová zásuvka v kuchyni pre elektrický sporák 400V
- každý byt bude mať vlastný merač elektriny umiestnený vo vonkajšej rozvodnej skrini elektriny
VODA:
- rozvod bez zariaďovacích predmetov s predprípravou na pripojenie práčky, vodovodných batérií a odpadu k WC
- štandardná príprava pre prívod teplej a studenej vody
- príprava pre umývačku riadu
- merače teplej a studenej vody v rozvodovej šachte
Prevedenie bytov a apartmánov v štádiu ŠTANDARDU pozostáva:
Okrem výbavy v prevedení Holobytu bude byt a apartmán do štádia STANDARDU vybavený:
- vchodové dvere fóliované protipožiarne
- obložkové zárubne MDF s krídlvými dverami
- laminátové podlahy
- osvetlenie v sociálnych zariadeniach a v chodbe
- keramická dlažby v sociálnych zariadeniach a na balkóne
- elektrický rebríkový radiátor v kúpeľni
- vypínače, zásuvky,
- umývadlo + umývadlová batéria, vaňa alebo sprchový kút s batériou
- WC misa závesná
- kuchynská linka základná, so vstavanými spotrebičmi elektrická
varná doska a vstavaná elektrická rúra, kuchynský drez s batériou a digestor.
Pôdorysy na stiahnutie TU:
Pôdorys 2.NP
Byt č.1.
Byt č.2.
Byt č.3
Byt č.4
Byt č. 5
Apartmán č.1
Apartmán č.2
Pôdorys 3.NP
Byt č.6.
Byt č.7.
Byt č.8
Byt č.9
Byt č. 10
Apartmán č.3
Apartmán č.4
Pôdorys 4.NP
Byt č.11
Byt č.12
Byt č. 13
Byt č.14
Byt č 15
Apartmán č.5
Apartmán č.6
CENNÍK BYTOV: CENNÍK od 1.5.2025
Všetky bližšie informácie a obhliadku dohodnete v našej realitnej kancelárii REALITY TATRY na tel. čísle 0903 99 30 99
CENA: Podľa cenníka !!!
Nezmeškajte túto jedinečnú ponuku a dohodnite si stretnutie ešte dnes !!!
Ako bonus k bytu získate GRÁTIS jedno vonkajšie parkovacie státie vo veľkosti 12 m2 a pivničnú kobku vo výmere 1,30 m2 !!!
Ďalšiu aktuálnu ponuka nájdete na našej stránke: www.realitytatry.sk alebo www.realitypopradtatry.sk